Whittington Drive, Weston-Super-Mare Whittington Drive, Weston-Super-Mare

Whittington Drive, Weston-Super-Mare

4 bedroom Bungalow for sale

£350,000

  • 4 bedroom

Key Features

Description

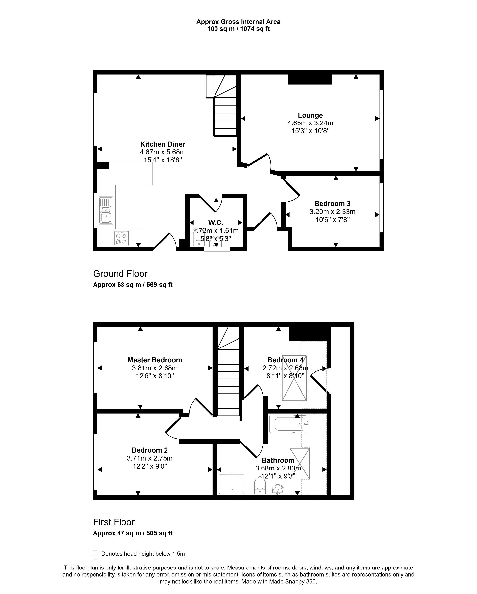
Ashcombe Estate Agents are delighted to present this deceptively spacious three/four-bedroom semi-detached home, ideally positioned on the sought-after Worle Hillside in Weston-super-Mare.

Beautifully presented throughout, this versatile property offers generous and flexible accommodation, making it ideal for families, those working from home, or buyers looking for extra living space. The rear of the property provides superb modern open-plan living, while still retaining a separate lounge and an additional reception room that could be used as a dining room or fourth bedroom depending on your needs.

The property also benefits from a modern fitted kitchen, one stylish bathroom and one W.C./utility room, and well-balanced accommodation arranged over two floors. Upstairs, there are three bedrooms together with an impressive four-piece family bathroom.

The property has benefited from a number of significant improvements, although it is worth noting that these works were carried out prior to the current owner's occupation, which commenced over five years ago. These improvements include a replacement main roof with Velux windows, a re-wire, and replacement of the garage roof.

Externally, the property enjoys landscaped gardens, ample off-street parking, and a garage.

Set in an elevated upper hillside position, the home is well placed for access to nearby amenities, with Worlebury Woods and Worle High Street both just a short walk away. This is a fantastic opportunity to acquire a spacious and adaptable home in one of Weston's most desirable locations.

Council Tax Band: C
Tenure: Freehold
Parking options: Driveway, Garage
Garden details: Rear Garden


Location


Floorplan

Floorplan

EPC

EPC for Whittington Drive, Weston-Super-Mare

Video Tour


Similar Properties

Vian End, Weston-Super-Mare - IMMACULATE
For Sale

Vian End, Weston-Super-Mare - IMMACULATE

3 Bed Bungalow For Sale
Guide price £435,000
Manor Gardens, Kewstoke, Weston-Super-Mare
For Sale

Manor Gardens, Kewstoke, Weston-Super-Mare

3 Bed End of terrace house For Sale
Guide price £255,000
Upper Bristol Road, Milton - PERFECT FOR FIRST-TIME BUYER
For Sale

Upper Bristol Road, Milton - PERFECT FOR FIRST-TIME BUYER

1 Bed Flat For Sale
Guide price £167,500