Ashcombe Park Road, Weston-Super-Mare Ashcombe Park Road, Weston-Super-Mare

Ashcombe Park Road, Weston-Super-Mare

3 bedroom Terraced House for sale

£365,000

  • 3 bedroom
  • 2 bathroom
  • 2 reception

Key Features

Description

Ashcombe Estate Agents are delighted to present this spacious three bedroom period home, ideally positioned on the ever-popular Ashcombe Park Road, just moments from Ashcombe Park itself.

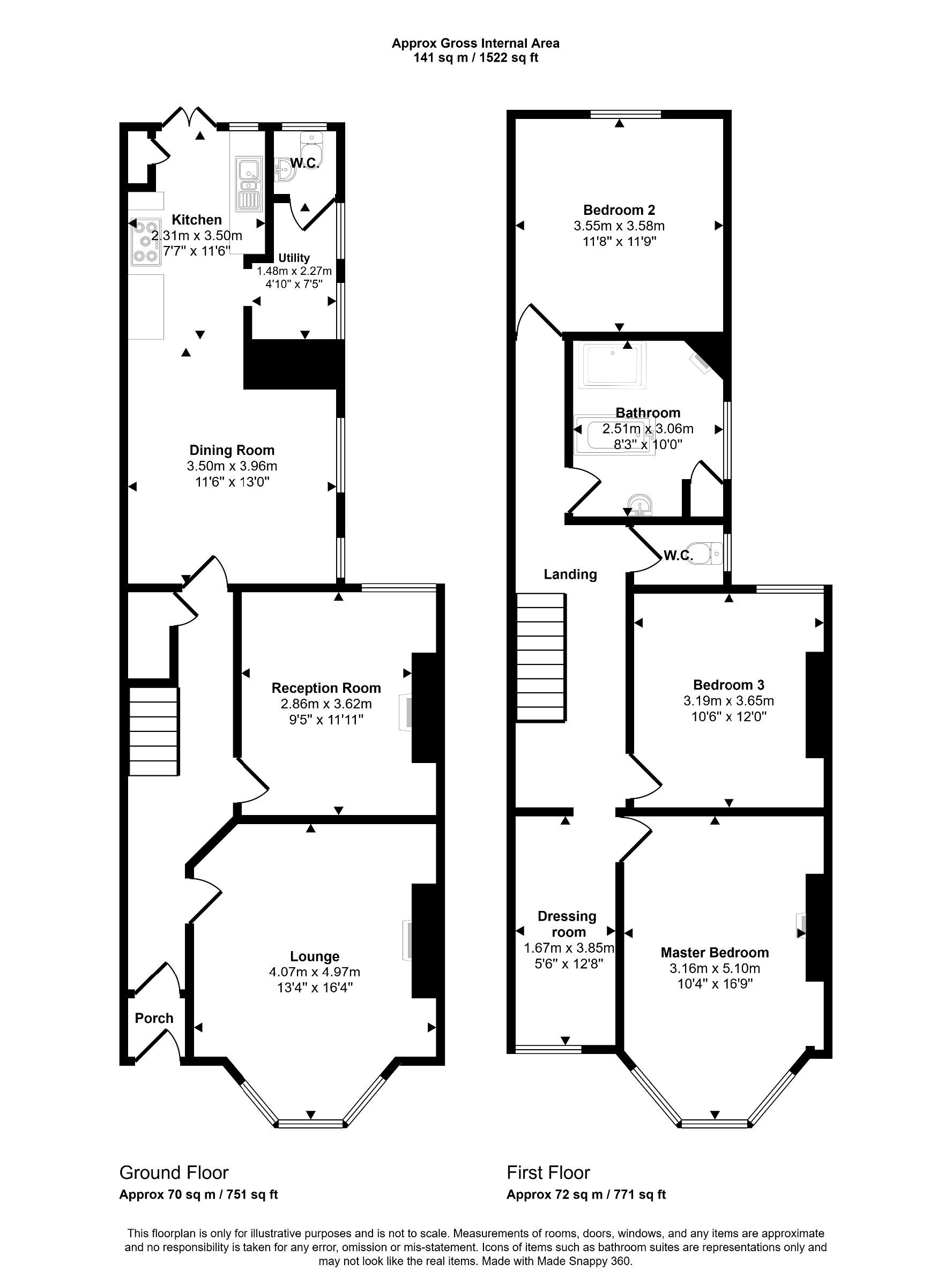
This attractive home offers generous and versatile accommodation, making it an excellent option for families seeking both space and convenience. The ground floor comprises a welcoming entrance hall, a bay-fronted lounge, a further reception room offering flexibility for family living, a convenient downstairs W.C., and a large kitchen/dining room with a useful utility area off.

Upstairs, the property provides three bedrooms, a dressing room (converted from the fourth bedroom), and a family bathroom, with the layout lending itself well to growing families or those needing additional room for home working or hobbies.

Externally, the property benefits from ample off-street parking to the front, together with front and rear gardens, giving practical outside space as well as room to enjoy in the warmer months.

Further benefits include the recent installation of a new combi boiler, offering improved energy efficiency and peace of mind for the next owner.

Situated between Milton and Weston town centre, the property is well placed for a range of nearby shops, cafés and everyday amenities, while Milton train station and local bus routes provide convenient transport links for commuters and day-to-day travel.

A well-proportioned home in a highly regarded location, early viewing is strongly recommended.

Council Tax Band: D
Tenure: Freehold
Parking options: Driveway
Garden details: Rear Garden


Location


Floorplan

Floorplan

EPC

EPC for Ashcombe Park Road, Weston-Super-Mare

Video Tour


Similar Properties

Milton Road, Weston-Super-Mare - NO CHAIN
For Sale

Milton Road, Weston-Super-Mare - NO CHAIN

4 Bed Terraced House For Sale
Guide price £320,000
Rectors Way, Weston-Super-Mare
For Sale

Rectors Way, Weston-Super-Mare

5 Bed Semi-detached house For Sale
Guide price £320,000
Garden Flat, Bristol Road Lower, Weston-Super-Mare - STUNNING GARDEN APARTMENT WITH SPACE, STYLE & SUNSHINE
Sold STC

Garden Flat, Bristol Road Lower, Weston-Super-Mare - STUNNING GARDEN APARTMENT WITH SPACE, STYLE & SUNSHINE

2 Bed Flat Sold STC
Guide price £227,000