Eastfield Gardens, Weston-super-Mare Eastfield Gardens, Weston-super-Mare

Eastfield Gardens, Weston-super-Mare

3 bedroom Semi-detached house for sale

£475,000

  • 3 bedroom
  • 2 bathroom
  • 2 reception

Key Features

Description

Ashcombe Estate Agents are delighted to present

A Charming 3-Bedroom Semi-Detached Family Home | Freehold | Blending Character, Comfort & Modern Living

Ashcombe Estate Agents are delighted to bring to market this beautifully presented three-bedroom semi-detached freehold home, perfectly combining traditional character and modern convenience. Brimming with charm and individuality, this impressive property offers generous and versatile living spaces ideally suited to family life.

Accommodation

Upon approach, a gated entrance leads into the private and enclosed front garden, with a walkway laid to concrete guiding you up to the welcoming vestibule.

A bright and spacious hallway with under stairs storage provides access to the principal rooms.

The front living room exudes warmth and charm, showcasing original oak beams, an open fireplace, and a large bay window fitted with electric blinds-perfect for enjoying the afternoon sun and garden views. Double doors open into the family/dining room, creating a seamless flow between spaces.

This stunning family room truly offers the wow factor, featuring a log-burning stove, exposed beams, and large sliding doors framing picturesque views of the mature rear garden. A cosy reading corner invites you to unwind while enjoying the surrounding greenery and wildlife. Electric blinds to the doors and roof lights add a contemporary touch of convenience.

From here, an outer hallway leads to a utility room with downstairs wet room, and on to the well-designed kitchen equipped with Neff appliances, a built-in hob and double oven, a standalone fridge freezer, and a large walk-in larder-perfect for modern family living.

First Floor

Upstairs, a spacious landing leads to:

Master Bedroom: A generous room with bay window (electric blinds), fitted wardrobes, and an abundance of natural light.

Second Double Bedroom: Offering delightful views over the rear garden, beautifully decorated throughout.

Third Bedroom/Office: Currently used as a home office but easily accommodates a double bed, also enjoying garden views.

Family Bathroom: Bright and airy, comprising a white suite with over-bath shower.


All bedrooms and hallways are decorated to a very high standard, providing a sense of style and cohesion throughout.

Outside

The front garden is attractively landscaped with mature shrubs and trees, offering off-street parking for 3-4 cars (or more when gates are open).

The rear garden is a true highlight- private, and beautifully designed. Mature trees and shrubs create a tranquil setting, complemented by a composite decked area leading directly from the family room-perfect for entertaining or relaxing in the afternoon sun.

An original garage building, now repurposed as a workshop or garden shed, provides additional space and functionality.

This exceptional family home offers the perfect blend of character, charm, and contemporary living-a rare opportunity not to be missed.

For more information or to arrange a viewing, please contact Ashcombe Estate Agents today.


Council Tax Band: D
Tenure: Freehold
This drive can accommodate several cars.
Parking options: Driveway
Garden details: Front Garden, Private Garden, Rear Garden


Location


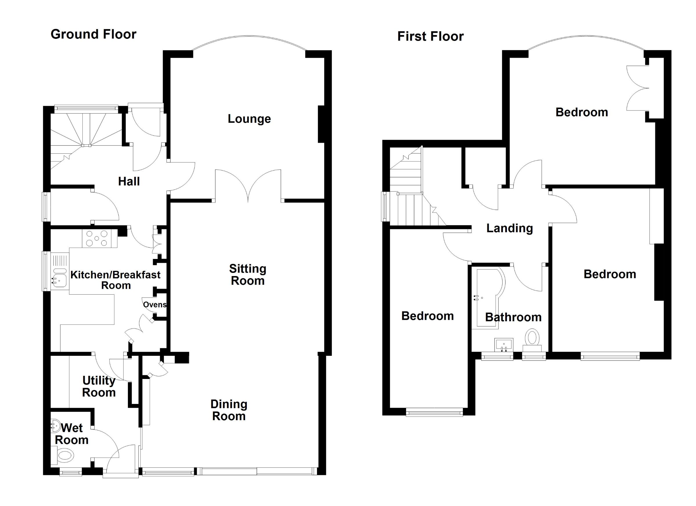
Floorplan

Floorplan

EPC


Video Tour


Similar Properties

Flat , St. Saviours Church, Locking Road, Weston-super-Mare
For Sale

Flat , St. Saviours Church, Locking Road, Weston-super-Mare

2 Bed Flat For Sale
Guide price £175,000
Whitecross Road, Weston-super-Mare
For Sale

Whitecross Road, Weston-super-Mare

2 Bed Flat For Sale
Guide price £170,000
Uphill Road South, Uphill, Weston-super-Mare - NO CHAIN
For Sale

Uphill Road South, Uphill, Weston-super-Mare - NO CHAIN

3 Bed Semi-detached house For Sale
Guide price £350,000